At Natalia Giacomino Architects, we believe that every home has hidden potential, and few projects demonstrate this more clearly than a well-designed loft conversion. We’re excited to share that our latest transformation, a loft conversion in the London Borough of Merton, has just received planning approval.
But this milestone is more than just a regulatory step , it’s a powerful moment where a family’s vision for their home begins to take shape. Our work is rooted in helping people make the most of the space they already have, enhancing both how they live and how they feel in their environment.
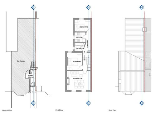
Designing to Transform Everyday Living
This particular project reimagines the upper level of a family home by introducing a spacious new bedroom, a contemporary en-suite, and custom built-in storage ,all designed around the specific needs of the occupants. By incorporating natural light through rooflights and carefully positioned glazing, we’re creating a space that feels open, peaceful, and deeply connected to the rest of the home.
Our mission goes beyond adding square meters. It’s about creating rooms that improve everyday life , blending function, comfort, and beauty to turn underused spaces into something truly special.
Turning Ideas Into Reality
With planning now secured, we’ve moved into the next phase: building regulation drawings. This technical step is where our design vision becomes reality, ensuring the project is built safely, efficiently, and in full compliance with current regulations, without compromising the essence of the design.
We work closely with clients, engineers, and builders to navigate each detail with care, transforming ideas into beautifully crafted, livable spaces.
Looking Ahead: Creating More Space, Meaningfully
As we bring this Merton project to life, we’re reminded why loft conversions continue to be such a valuable opportunity , especially in dense urban settings like London. They allow families to grow, adapt, and thrive in homes they already love, while increasing property value and enhancing quality of life.
At Natalia Giacomino Architects, we’re proud to help homeowners see space differently , and to guide them on the journey from unused attic to fully realized.
Stay tuned for more updates as this project progresses from paper to place.












.jpeg)

.jpeg)





.jpeg)




.jpeg)





.jpg)






.jpeg)





